︎
Morningside Townhouses
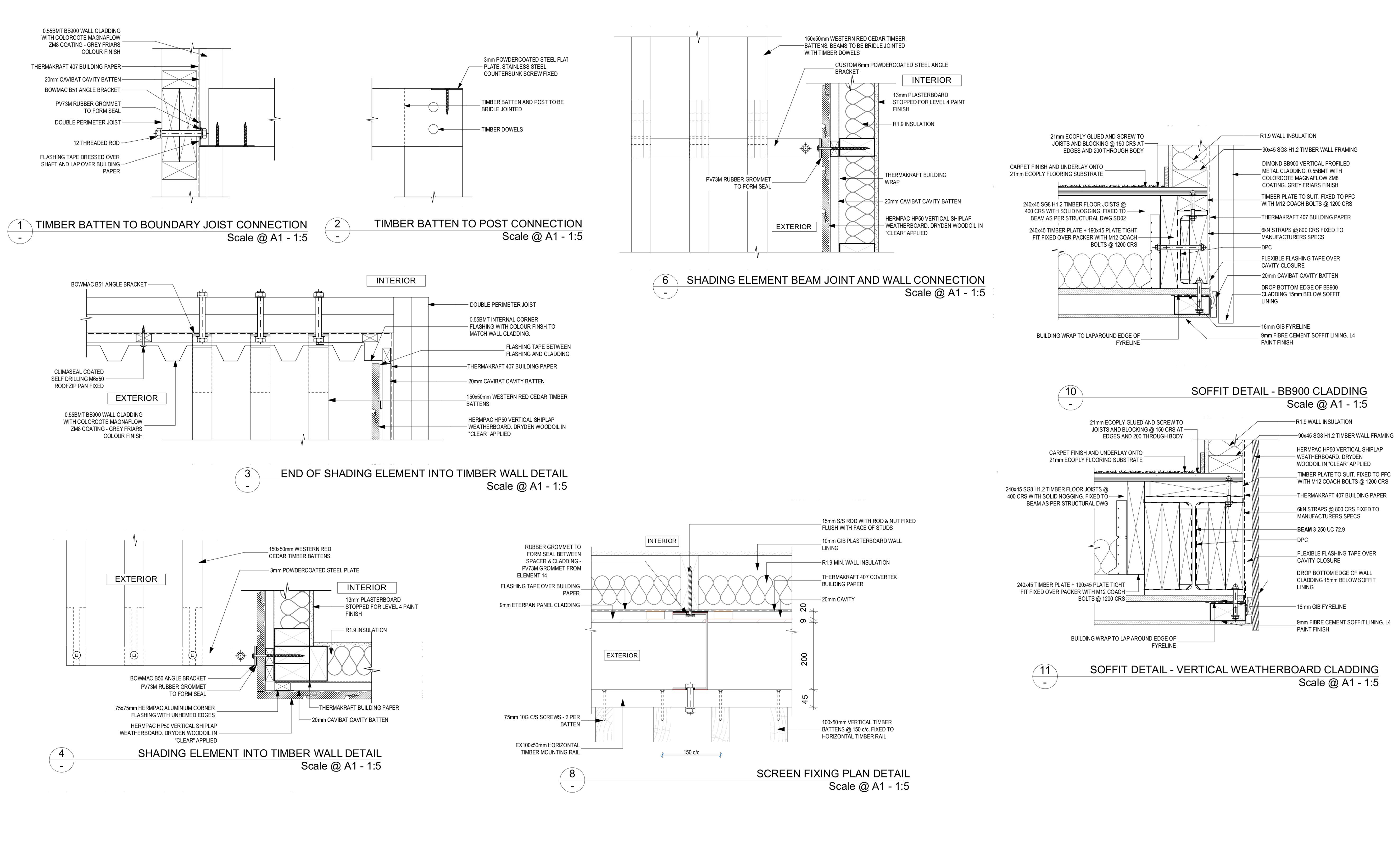
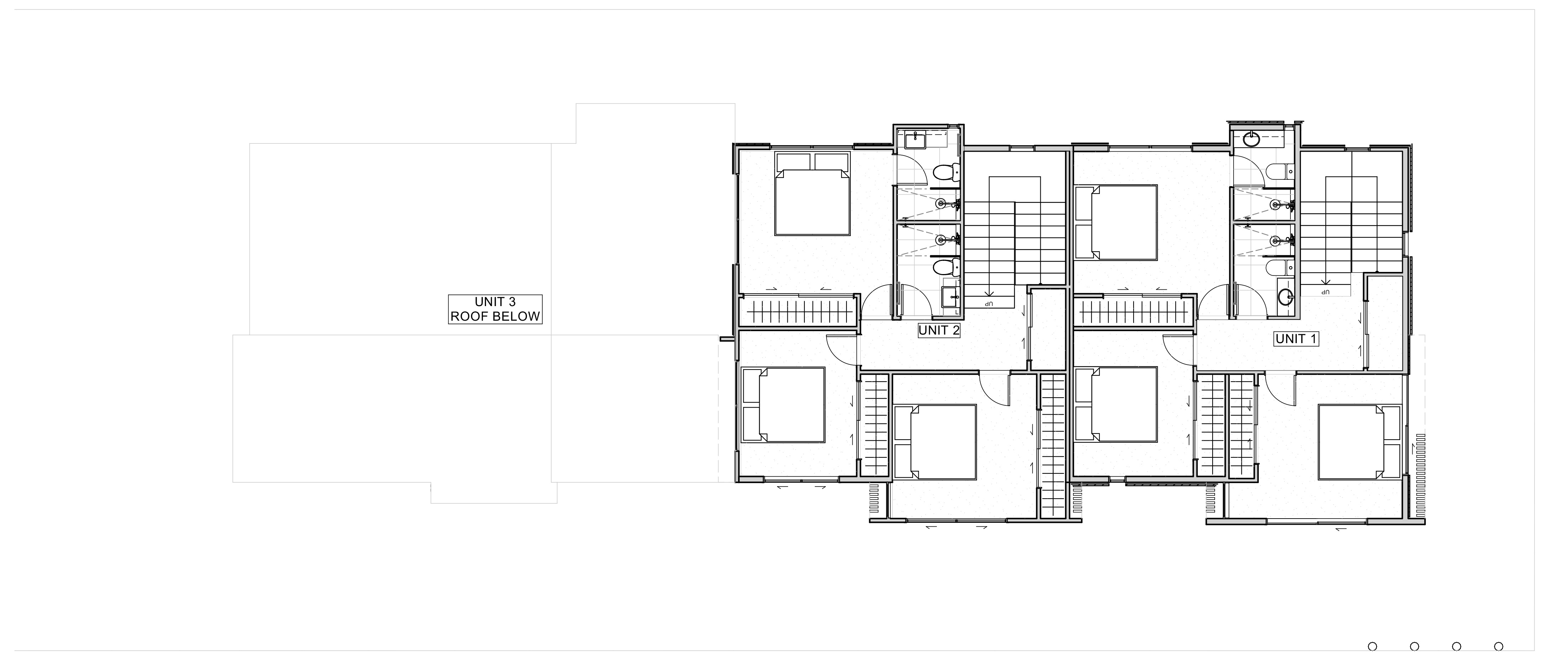
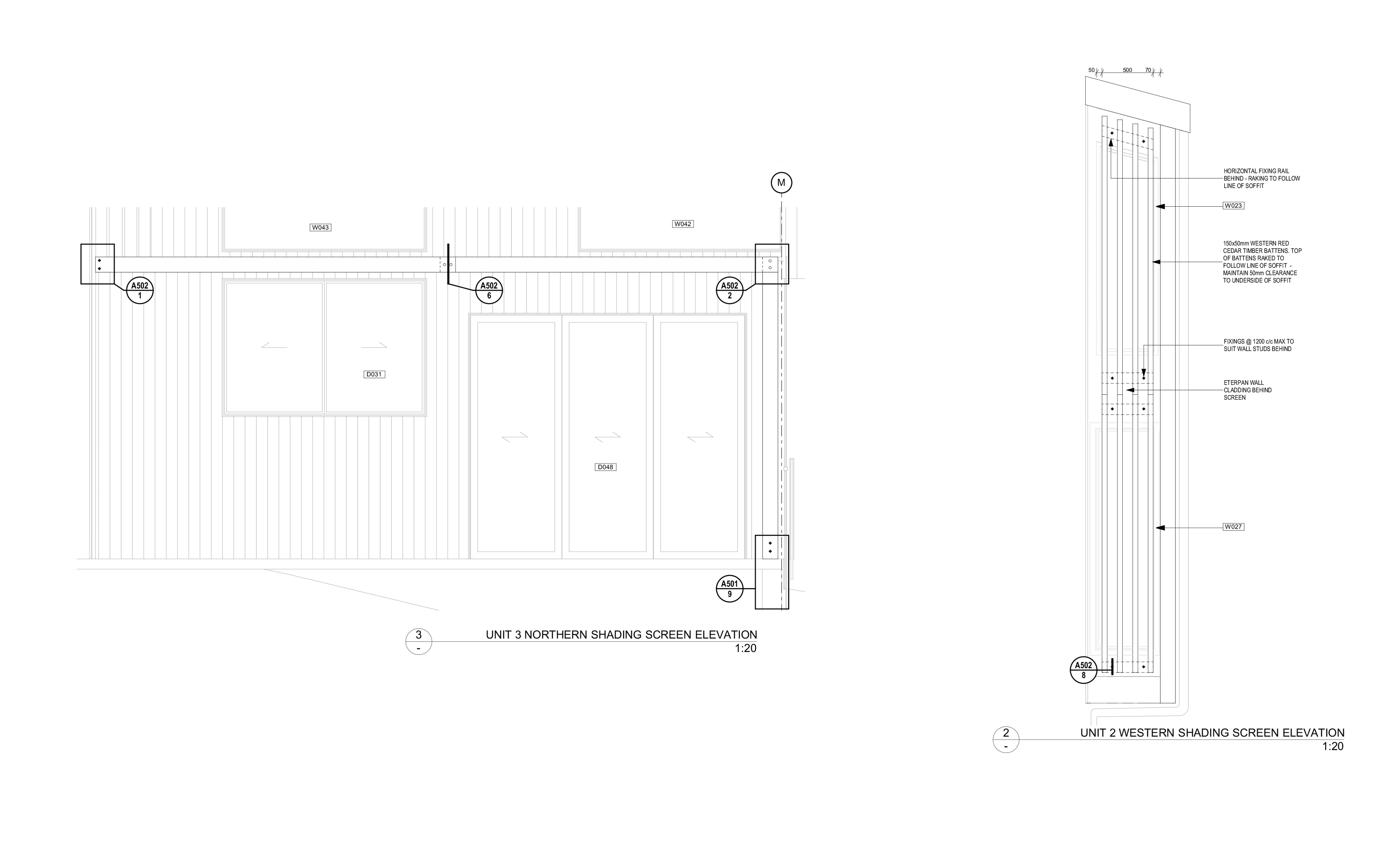
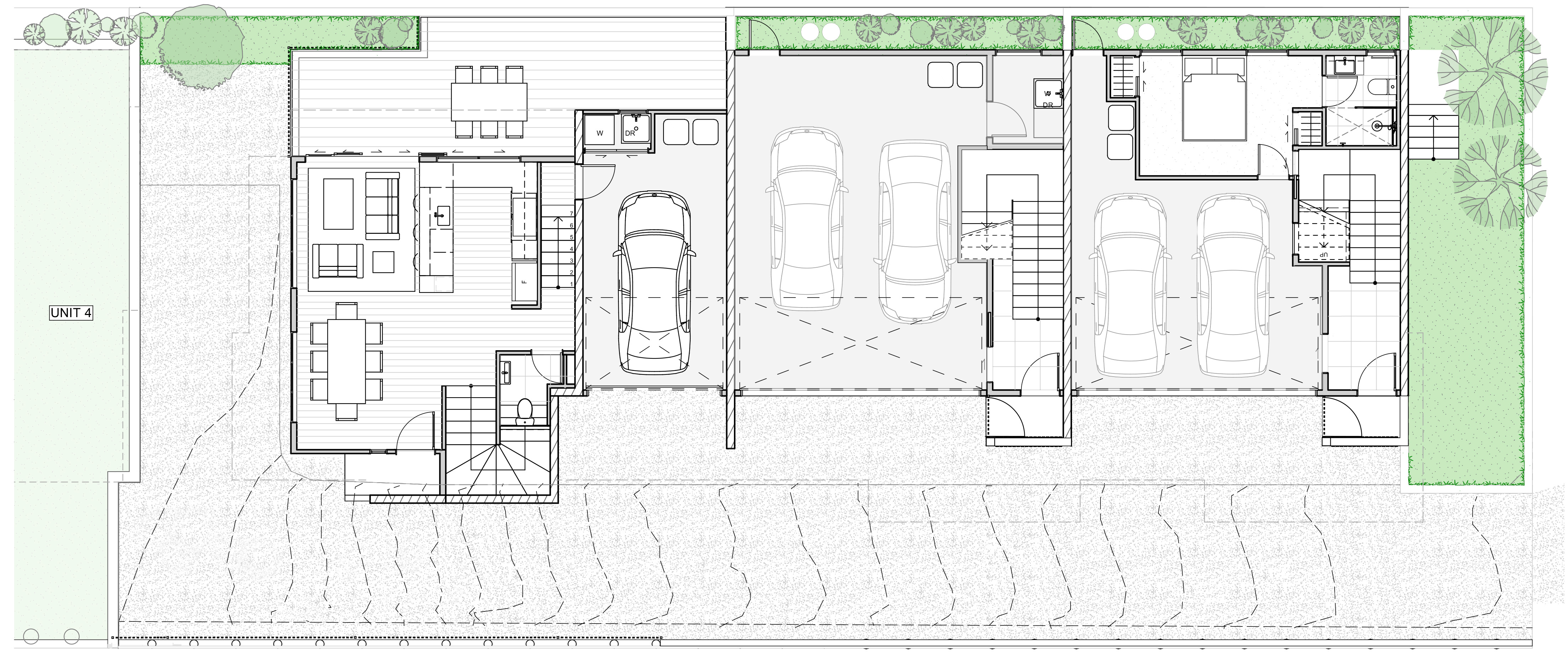
This was a staged project that developed a single unit site to a 4 unit site. This stage was for the 3 townhouses at the top of the site, for which I was the lead documentor for the Building Consent drawings.